Meny
Hem till Salu Nyproduktion Om oss Byta Bostad Medarbetare Kontakt
Logotyp
Kantarellstigen 12

Salem / Kantarellstigen 12

Välplanerat 2 plansradhus på friköpt trädgårdstomt

Välkommen till detta trivsamma och väl omhändertagna 2-plans radhus med friköpt tomt – ett hem som inte bara erbjuder en bra grund, utan också fullt med möjligheter att forma efter dina egna drömmar och behov. Här bor du med ett härligt läge på en populär och barnvänlig adress, med två uteplatser i olika väderstreck och en inglasad balkong som vetter mot baksidan. Planlösningen är både praktisk och hemtrevlig, med sociala ytor samlade på entréplanet och fyra rymliga sovrum avskilt på det övre planet – perfekt för familjelivet. Läget på Kantarellstigen är svårslaget, precis på gränsen mellan Salem och Rönninge. Här har du en av kommunens bästa pulkabackar utanför knuten, idyllisk natur och bilfria gång- och cykelvägar som tryggt leder till skolor och förskolor. Kommunikationerna är dessutom mycket goda med busshållplats på bara några minuters promenad, som snabbt tar dig vidare till Rönninge centrum eller Salems inomhuscentrum med allt från matbutik och apotek till restauranger. Den bilburne når E4an på några minuter. Det här är en bostad med alla förutsättningar – redo att bli just ditt drömhem.

BESKRIVNING;
Ni som söker ett mysigt boende nära natur med barnvänliga omgivningar är varmt välkomna till detta välplanerade 2-plans radhus som ligger i ett attraktivt område. Det väl omhändertagna huset omges av en friköpt trädgårdstomt. I övrigt disponerad bostaden enligt följande;

ENTRÉPLAN:
Den asfalterade gången tar dig förbi framsidan med en uteplats i härligt västerläge.

HALL
Välkommen in i detta trevliga radhus där du redan i hallen får en ljus och inbjudande känsla. Här möts du av klinkergolv samt målade väggar. Gott om förvaringsmöjligheter i skjutdörrsgarderoben. Fortsätt in till den rymliga innehallen där du har tillgång till ytterligare förvaring i ett förråd.

KÖK
Direkt till höger i hallen ligger det praktiska köket med generösa arbets- och förvaringsytor. Köket är en trivsam plats för hela familjen att samlas och äta härliga middagar invid fönstren som vetter mot bostadens framsida. Här pryds skåpen av luckor i ek och ovanför arbetsbänkarna sitter kakel. På golvet ligger laminat och väggarna pryds av vitmålad vävtapet. Här finns spis med häll, spisfläkt, diskmaskin, kyl och frys.

VARDAGSRUM
Vidare öppnar sig ett generöst vardagsrum, där det gott och väl ryms både soffgrupp och matsalsgrupp om så önskas. Här ligger ekparkett på golvet och ljuset flödar in från de generösa fönstren. Från vardagsrummet finns utgången till den stenbelagda uteplatsen och trädgården på baksidan.

BADRUM 1
På entréplanet återfinns ett av husets två badrum. Detta badrum har helkaklade väggar och klinker på golvet. Här finns dusch, tvättställ, wc och elpanna.

FÖRRÅD
Intill badrummet återfinns ett rymligt förråd.

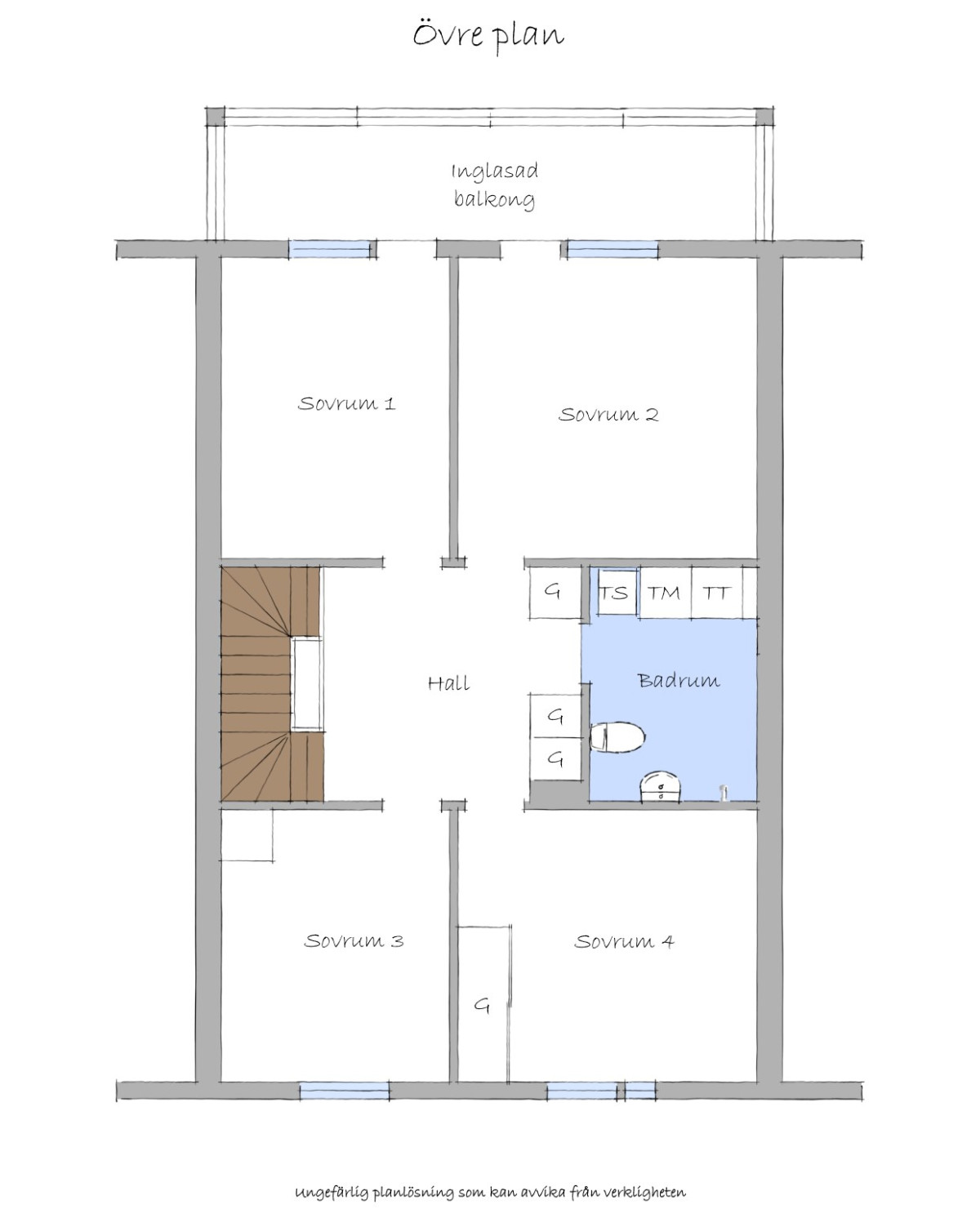
ÖVRE PLAN;
Trappan tar dig upp till det övre planet och hallen som erbjuder förvaring i tre garderober. Hallen på det övre planet binder samman samtliga rum på detta våningsplan.

SOVRUM 1
Från två av sovrummen kommer du ut till balkongen. Det första sovrummet är rymligt med plats för dubbelsäng, nattduksbord och förvaring. Här är väggarna tapetserade i blått och på golvet ligger laminat.

SOVRUM 2
I det andra sovrummet, vilket är det övre planets största rum, ligger laminat på golvet och väggarna är tapetserade i gult. Utgång till balkongen återfinns här.

BALKONG
Inglasad balkong med förmiddagssol och högt läge.

SOVRUM 3
Nästa sovrum har även det laminatgolv samt ljusa tapeter.

SOVRUM 4
Det fjärde sovrummet har plastmatta på golvet och tapetserade väggar. Här finns en garderob att tillgå.

BADRUM 2
Husets andra badrum med tvättavdelning återfinns på det övre planet inrett med klinker och kakel. Här finns wc, tvättställ, en extra ho, handdusch, tvättmaskin från 2023 och torktumlare.

Kort fakta

Boarea
126 kvm
Antal rum
5 rum
Tomtarea
216 kvm
Pris
3 395 000 kr

Visning

Tor 6/11 kl 18:30–19:00 Välkommen på visning!
Sön 9/11 kl 15:00–15:30 Välkommen på visning!

Ansvarig mäklare

Amanda Alwin
Fastighetsmäklare
073-2333358 amanda@pianfa.com

Intresseanmälan

Kort fakta

Typ
Radhus
Upplåtelseform
Friköpt
Adress
Kantarellstigen 12
Område
Salem
Kommun
Salem
Boarea
126 kvm
Antal rum
5 rum & kök, varav 4 sovrum
Tomtarea
216 kvm
Pris
3 395 000 kr utgångspris

Byggnad

Byggnadstyp
2-plansradhus
Byggnadsår
1983
Fasad
Trä och Siporex
Stomme
Lättbetong
Fönster
2- glas/3-glas
Bjälklag
Lättbetong
Tak
Falsad plåt
Grund
Krypgrund
Uppvärmning
Vattenburen El
Vatten/avlopp
Kommunalt vatten året om. Kommunalt avlopp
Ventilation
Självdrag
Övriga byggnader
Garage och förråd i länga.
Övrigt
Stenbelagd uteplats på baksidan i österläge
Stenbelagd uteplats på framsidan i västerläge
Inglasad balkong på baksidan i österläge
Tak 2018
3-glasfönster entréplan 6-8 år
2-glas isolerfönster övre plan från 1982

Tomten

216 kvm. Trädgårdstomt.

Besiktning

Förbesiktigad
Ja

Energideklaration

Status
Utförd (2025-10-27)
Primärtenergital
174 kWh/m2/år
Energiklass
F

Ekonomi

Taxeringsvärde
3 086 000 kr (fastställt avseende år 2024)
Värdeår
1983
Byggnadsvärde
1 987 000 kr
Markvärde
1 099 000 kr
Skatt/avgift
10 074 kr
Typkod
220, Småhusenhet, bebyggd

Pantbrev

Totalt 3 st pantbrev om 820 000 kr.

Servitut / Planbestämmelser

Rättigheter / gemensamhetsanläggningar
Gemensamhetsanläggning: Salem kantarellen ga:1 ändamål: Vägar, Vattenförsörjning, Avloppsanläggning, Grönområden, Övrigt
Planbestämmelser
Ändring av detaljplan (2008-06-17) Stadsplan (1967-02-23)
Välkommen till Kantarellstigen 12 Kantarellstigen 12
Välkommen till Kantarellstigen 12
Kök med matplats Kantarellstigen 12
Kök med matplats
Kök Kantarellstigen 12
Kök
Rymligt vardagsrum Kantarellstigen 12
Rymligt vardagsrum
Stenbelagd uteplats Kantarellstigen 12
Stenbelagd uteplats
Kök Kantarellstigen 12
Kök
Kök med matplats Kantarellstigen 12
Kök med matplats
Vardagsrum Kantarellstigen 12
Vardagsrum
Vardagsrum Kantarellstigen 12
Vardagsrum
Vardagsrum Kantarellstigen 12
Vardagsrum
Uteplats Kantarellstigen 12
Uteplats
Badrum Kantarellstigen 12
Badrum
Hall Kantarellstigen 12
Hall
Hall Kantarellstigen 12
Hall
Innehall och trapphus Kantarellstigen 12
Innehall och trapphus
Sovrum 1 Kantarellstigen 12
Sovrum 1
Sovrum 2 Kantarellstigen 12
Sovrum 2
Inglasad balkong Kantarellstigen 12
Inglasad balkong
Inglasad balkong Kantarellstigen 12
Inglasad balkong
Hall mot sovrum 3 och 4 Kantarellstigen 12
Hall mot sovrum 3 och 4
Sovrum 3 Kantarellstigen 12
Sovrum 3
Sovrum 4 Kantarellstigen 12
Sovrum 4
Badrum Kantarellstigen 12
Badrum
Framsida Kantarellstigen 12
Framsida
Baksida Kantarellstigen 12
Baksida
Fastighetskarta Kantarellstigen 12
Fastighetskarta
Planritning
Planritning