Meny
Hem till Salu Nyproduktion Om oss Byta Bostad Medarbetare Kontakt
Logotyp
Söderby torgs allé 48

Söderby / Söderby torgs allé 48

Toppenfin villa med fantastisk läge och mycket bra planlösning

Välkomna till denna fantastiskt fina och generösa villa med harmonisk planlösning och ett absolut toppenläge med soliga altaner och insynsskyddad tomt. I populära Söderby finner du detta drömboende i toppskick på en lugn gata intill skog och natur. Det stora, stilfulla och energisnåla huset har hög klass av materialval och smakfulla detaljer med känsla och finess. Stort kök och social planlösning med härliga sällskapsytor och praktiska utrymmen. Fyra sovrum och praktisk tvättstuga med groventré. Ny frånluftsvärmepump, solceller, braskamin och luftluftvärmepum ger huset låga driftkostnader. Garage samt rymlig uppfart med plats för 4 bilar. Omgivningarna är väldigt barnvänliga med gångavstånd till skola, förskola och buss. Salems kommun är ett omtyckt och lugnt samhälle med populära skolor, förskolor och bra serviceutbud. Här kan du njuta av en slående vacker natur samt närhet till populära bad och fiskesjöar. Till Stockholm City tar du dig enkelt med direktbuss, bil eller pendeltåg. För den bilburna är du snabbt ute på E4/E20.

ALLMÄN BESKRIVNING
Stor Trivselhusvilla med spännande och öppen planlösning, stora fönsterpartier och generös takhöjd. Stora sociala ytor, generösa sovrum och två helkaklade badrum. Fina materialval och genomgående ekparkettgolv. Gott om förvaringsmöjligheter. Vattenburen golvvärme och braskamin. Bostaden disponeras enligt följande:

ENTRÉPLAN:
HALL
Välkomnande och rymlig hall med vackert och tåligt klinkergolv som övergår till parkett. Väggarna är målade.

TVÄTTSTUGA
Praktisk tvättstuga med klinkergolv och groventré. Bra med plats för klädvård och förvaring. Här finns den nya frånluftsvärmepumpen från 2024 samt tvättmaskin, torktumlare och centraldammsugare.

SOVRUM 1 / MASTER MED KLÄDKAMMARE
Stort sovrum med utgång till trädgården på husets baksida. På golvet ligger parkett och väggarna är målade, här finns även en klädkammare.

BADRUM
Stilfullt helkaklat badrum 2021 med duschhörna, dubbelhandfat, wc, spotlights och golvvärme.

KLÄDKAMMARE
Praktisk klädkammare med bra förvaringsmöjligheter.

VARDAGSRUM OCH INGLASAT UTERUM
Det stora vardagsrummet har stora fönsterpartier och takhöjd upp till nock. På golvet ligger parkett och väggarna är målade. Från vardagsrummet kommer du ut till det vidbyggda och inglasade uterummet. Vidare öppnar vardagsrummet upp sig mot matplats och kök vilket tillsammans blir den naturliga samlingsplatsen för hela familjen.

KÖK MED MATPLATS OCH SKAFFERI
Stort kök med generösa arbetsbänkar och köksö ger gott om förvaringsmöjligheter, dessutom stort praktiskt skafferi i anslutning till köket. Köket är utrustat med kyl, frys, induktionshäll, spisfläkt, inbyggd ugn, mikro och diskmaskin. Köket är öppet mot den stora matplatsen som rymmer stort middagsbord och långa sittningar med släkt och vänner. Vid matplatsen finns den värmande och stämningsfulla braskaminen. Från köket kan du ta ett kliv ut till uteplats och trädgård.

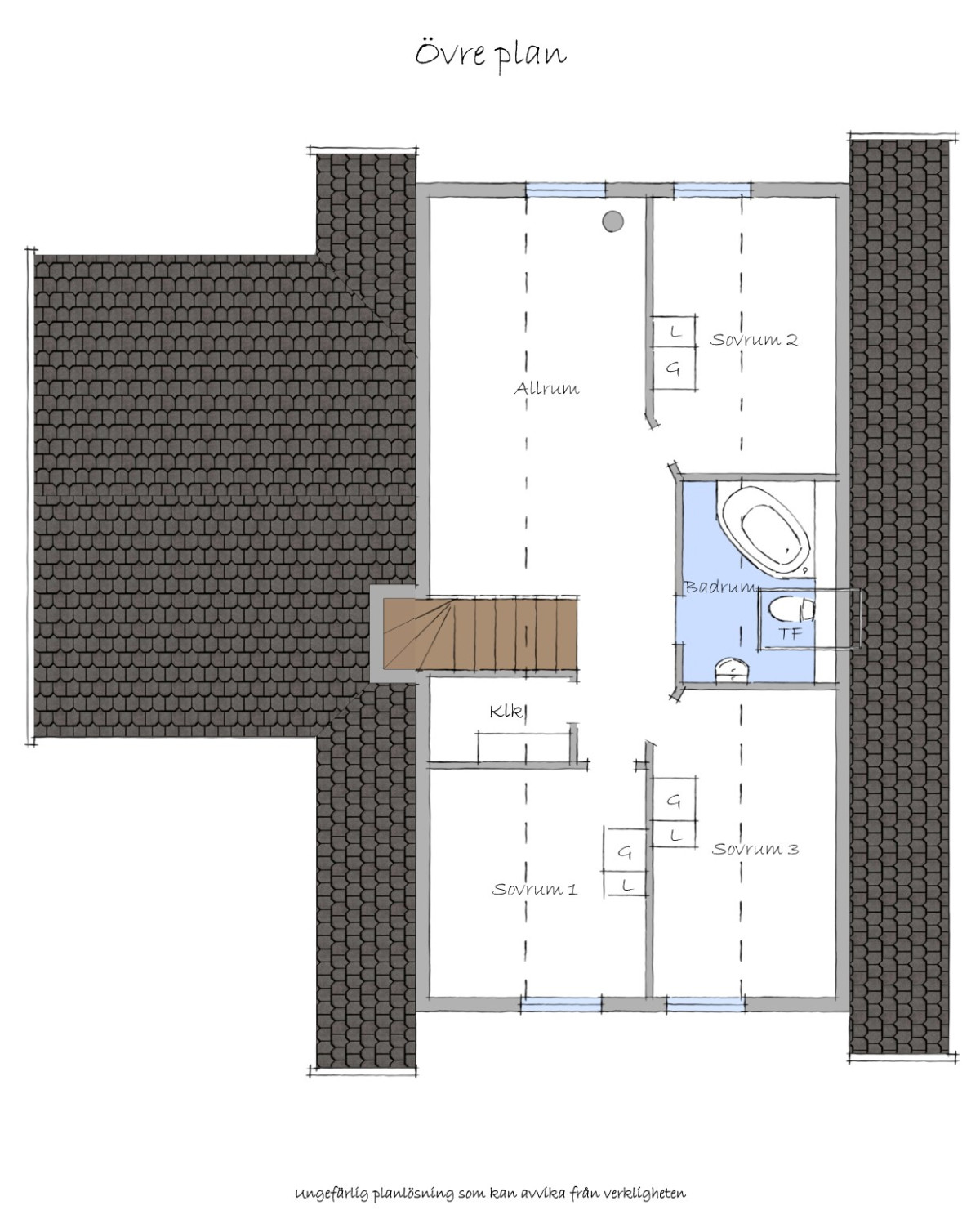
ÖVRE PLAN
ALLRUM
Stort allrum med parkettgolv och målade väggar.

SOVRUM 2
Trevligt sovrum med parkettgolv och målade väggar.

BADRUM
Helkaklat badrum med golvvärme och härligt ljusinsläpp från takfönster. Här finns ett stort hörnbadkar, wc och handfat.

SOVRUM 3
Även detta sovrum med parkettgolv och målade väggar.

SOVRUM 4
Sista sovrummet har parkettgolv och målade väggar.

KLÄDKAMMARE
Stor och praktisk klädkammare.

Kort fakta

Boarea/biarea
165/15 kvm
Antal rum
6 rum
Tomtarea
719 kvm

Visning

Kontakta mäklaren för visning.

Ansvarig mäklare

Patrik Alwin
Fastighetsmäklare
070-9154888 patrik@pianfa.com

Intresseanmälan

Kort fakta

Typ
Friliggande villa
Upplåtelseform
Friköpt
Adress
Söderby torgs allé 48
Område
Söderby
Kommun
Salem
Boarea/biarea
165/15 kvm
Antal rum
6 rum & kök, varav 4 sovrum
Tomtarea
719 kvm

Byggnad

Byggnadstyp
1½-plansvilla i vinkel
Byggnadsår
2009
Fasad
Puts
Stomme
Trä
Fönster
3-glas
Bjälklag
Trä
Tak
Betongpannor
Grund
Betongplatta på mark
Uppvärmning
Frånluftsvärmepump, braskamin och solceller
Vatten/avlopp
Kommunalt vatten året om. Kommunalt avlopp
Ventilation
Mekanisk (endast frånluft)
Övriga byggnader
Fristående isolerat garage om ca 30 kvm. Vidbyggt inglasat uterum om ca 15 kvm.
Övrigt
Stor altan klädd i komposit.
Jacuzzi.
Stenbelagd infart.

- Ny frånluftsvärmepump
- Solceller
- Braskamin
- Luftluftvärmepump
- Öppen planlösning
- Två helkaklade badrum
- Tvättstuga med groventré
- Elbilsladdare
- Fiber

Tomten

719 kvm. Trädgårdstomt.

TV- och internetanslutning

Bredband: Fiber.

Driftkostnader

Hushållsel
26 208 kr
Vatten/avlopp
8 874 kr
Väg/samfällighetsavgift
3 500 kr
Antal personer i hushållet
4 st
Summa
38 582 kr
(fastighetsavgift/skatt på 10 074 kr tillkommer)
Elförbrukning
10 975 kWh/år
Energiklass

Ekonomi

Taxeringsvärde
5 553 000 kr (fastställt avseende år 2024)
Värdeår
2009
Byggnadsvärde
3 700 000 kr
Markvärde
1 853 000 kr
Skatt/avgift
10 074 kr
Typkod
220, Småhusenhet, bebyggd

Pantbrev

Totalt 4 st pantbrev om 4 885 504 kr.

Servitut / Planbestämmelser

Rättigheter / gemensamhetsanläggningar
Gemensamhetsanläggning: Salem kusken ga:1 ändamål: Vägar, Elledning och/eller belysning, Grönområden
Planbestämmelser
Detaljplan (2005-02-24)
Kök och matplats Söderby torgs allé 48
Kök och matplats
Matplats och vardagsrum Söderby torgs allé 48
Matplats och vardagsrum
Vardagsrum Söderby torgs allé 48
Vardagsrum
Matplats Söderby torgs allé 48
Matplats
Kök Söderby torgs allé 48
Kök
Kök Söderby torgs allé 48
Kök
Kök Söderby torgs allé 48
Kök
Matplats och kök Söderby torgs allé 48
Matplats och kök
Kök Söderby torgs allé 48
Kök
Kök Söderby torgs allé 48
Kök
Matplats mot kök Söderby torgs allé 48
Matplats mot kök
Kök Söderby torgs allé 48
Kök
Kök mot matplats och vardagsrum Söderby torgs allé 48
Kök mot matplats och vardagsrum
Kök mot matplats och vardagsrum Söderby torgs allé 48
Kök mot matplats och vardagsrum
Matplats Söderby torgs allé 48
Matplats
Inglasat uterum Söderby torgs allé 48
Inglasat uterum
Vardagsrum mot matplats och kök Söderby torgs allé 48
Vardagsrum mot matplats och kök
Vardagsrum Söderby torgs allé 48
Vardagsrum
Vardagsrum Söderby torgs allé 48
Vardagsrum
Hall Söderby torgs allé 48
Hall
Sovrum 1 / Master Söderby torgs allé 48
Sovrum 1 / Master
Badrum Söderby torgs allé 48
Badrum
Tvättstuga Söderby torgs allé 48
Tvättstuga
Allrum Söderby torgs allé 48
Allrum
Allrum Söderby torgs allé 48
Allrum
Sovrum 2 Söderby torgs allé 48
Sovrum 2
Sovrum 3 Söderby torgs allé 48
Sovrum 3
Sovrum 4 Söderby torgs allé 48
Sovrum 4
Badrum Söderby torgs allé 48
Badrum
Badrum Söderby torgs allé 48
Badrum
Exteriör Söderby torgs allé 48
Exteriör
Uteplats / Inglasat uterum Söderby torgs allé 48
Uteplats / Inglasat uterum
Framsida Söderby torgs allé 48
Framsida
Baksida / Jacuzzi Söderby torgs allé 48
Baksida / Jacuzzi
Jacuzzi Söderby torgs allé 48
Jacuzzi
Baksida Söderby torgs allé 48
Baksida
Framsida Söderby torgs allé 48
Framsida
Baksida Söderby torgs allé 48
Baksida
Fastighetskarta Söderby torgs allé 48
Fastighetskarta
Planritning
Planritning