Meny
Hem till Salu Nyproduktion Om oss Byta Bostad Medarbetare Kontakt
Logotyp
Linnéastigen 8

Salem / Linnéastigen 8

Toppenfint och tillbyggt kedjehus på friköpt tomt med perfekt läge

KONTAKTA MÄKLAREN FÖR VISNING! Välkommen till populära Linnéastigen och detta toppenfina, moderna och välplanerade kedjehus som ligger näst längst in på återvändsgatan med friköpt trädgårdstomt. Huset är i toppskick där bergvärme, 3-glasfönster och tilläggsisolering ger låga driftkostnader. Här kan du bo i ett barnvänligt och tryggt område med närhet till lekplats, natur och goda kommunikationer. Nybyggt garage med plats för en bil och stor uppfart med plats för flera bilar, laddbox finns. Huset omges av en stor lättskött grönlummig trädgårdstomt som inramas av vacker växtlighet. Tillbyggt stort burspråk i köket ger värdefulla och rymliga kvadratmeter. Genereösa uteplatser på fram och baksida samt tillbyggd balkong. Enkelt att göra om planlösningen till 4 sovrum vid behov. Boendemiljön är mycket trivsam för både gammal som ung, Omgivningarna består av härliga skog- och naturområden att ströva i och på de bilfria gångvägarna som sträcker sig runt Salem kan du snabbt och tryggt ta dig till skola och förskolor, buss och Salems centrum där det bl a finns matbutik, restauranger, konditori och simhall/gym. Den bilburna tar sig till E4an på några minuter.

BESKRIVNING
På en härlig och stor friköpt trädgårdstomt ligger detta moderna och energisnåla kedjehus med mycket förvaringsutrymmen. Huset är i toppenfint skick och disponeras enligt följande:

ENTRÉPLAN:

HALL
Välkomnande hall med praktisk och vackert klinkergolv som värms upp av vattenburen golvvärme. Väggarna är målade och har bröstpanel. I den rymliga innehallen finns platsbyggda garderober och plats för ytterligare möblering, här finns även en värmekonvektor.

SOVRUM 1
Direkt till vänster från hallen ligger ett stort ljust sovrum med körsbärsparkett och målade väggar.

SOVRUM 2
Till höger från hallen ligger nästa sovrum med parkettgolv samt målade väggar, här finns flera garderober.

BADRUM
Helkaklat och modernt badrum som byggts om i vinkel vilket ger rymlig och mysig plats för badkar. Här finns även wc, tvättställ samt golvvärme.

PANNRUM
Praktiskt utrymme där bergvärmepumpen står placerad.

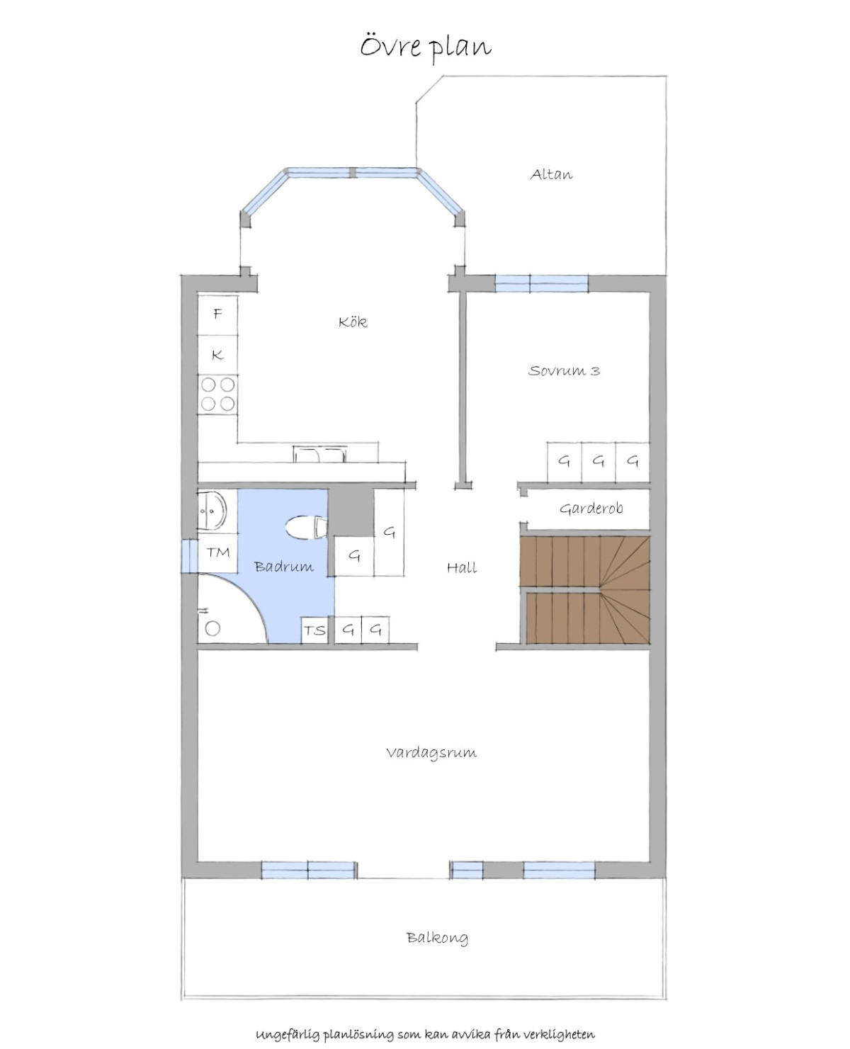
ÖVRE PLAN;

HALL
Den vackra trappan med putsade väggar och ljusinsläpp via glasbetong tar dig till husets övre våningsplan, där du möts av hallen, vilken pryds med parkettgolv och målade väggar. Här finns en rymlig klädkammare och garderober.

KÖK
Stort kök från 2017 med tillbyggt burspråk ger efterlängtade och lättmöblerade ytor där både köksö och stort matbord får plats. Gott om förvaring i skåp och lådor som pryds av svarta luckor. På golvet ligger praktisk och vacker klinker och väggarna är målade. Generösa arbetsbänkar i granit med vitt kakel ovanför hela vägen upp till tak. Burspråket har stora fönsterpartier och har två utgångar till baksidan vackra oas. Köket är utrustat med spis med induktionshäll, spisfläkt, mikro, kyl, frys och diskmaskin. Härifrån finns utgången till den lummiga baksidan.

UTEPLATS
Den generösa träbelagda uteplatsen erbjuder ett fint läge med rogivande omgivningar, här finns även en stor markis.

SOVRUM 3
Stort sovrum med gott om plats för dubbelsäng och sängbord. Golvet pryds med parkett och väggarna är målade, här finns 3 garderober.

VARDAGSRUM
Vardagsrummet är rymligt och lättmöblerat med gott om plats för soffgrupp och matsalsmöbler. Rummet har parkettgolv samt målade väggar som matchas med en vacker fondtapet. Många fönster ger fint ljusinsläpp samt härlig utsikt. Härifrån finns utgång till den stora balkongen som har skyddande markis. Vid behov finns plats för ytterligare ett sovrum i vardagsrummet.

BADRUM 2
Stort modernt helkaklat badrum med golvvärme. Här finns ett dusch, tvättställ, wc och handdukstork. Bra utrymme för klädvård, här finns även tvättmaskin och torkskåp (ur funktion).

Kort fakta

Boarea/biarea
130/29 kvm
Antal rum
4 rum
Tomtarea
516 kvm
Pris
4 345 000 kr

Visning

Sön 10/5 kl 14:45–15:15 Välkommen på visning!

Ansvarig mäklare

Patrik Alwin
Fastighetsmäklare
070-9154888 patrik@pianfa.com

Intresseanmälan

Kort fakta

Typ
Kedjehus
Upplåtelseform
Friköpt
Adress
Linnéastigen 8
Område
Salem
Kommun
Salem
Boarea/biarea
130/29 kvm
Antal rum
4 rum & kök, varav 3 sovrum
Tomtarea
516 kvm
Pris
4 345 000 kr utgångspris

Byggnad

Byggnadstyp
1 plans kedjehus med soutterrängvåning
Byggnadsår
1968
Fasad
Träpanel
Stomme
Lättbetong
Fönster
3-glas
Bjälklag
Lättbetong
Tak
Plåt
Grund
Krypgrund
Uppvärmning
Bergvärme
Vatten/avlopp
Kommunalt vatten året om. Kommunalt avlopp
Ventilation
Självdragsventilation (förstärkt med mekanisk forcering i våtrum, typ Paxfläktar).
Övriga byggnader
Nybyggt garage samt uppfart med plats för flera bilar. Laddbox för elbil finns.
Övrigt
Tillbyggt stort burspråk i kök.
Träbelagd altan på baksidan.
Träbelagd altan på framsidan.
Balkong på framsidan.

- Bergvärme
- Tilläggsisolerat
- 3-glasfönster
- Radonmätning utförd
- Nytt kök
- Två helkaklade moderna badrum
- Genomgående moderna ytskikt
- Ny elcentral
- Markiser
- Fiber
- Friköpt tomt

Tomten

516 kvm. Trädgårdstomt.

TV- och internetanslutning

Bredband: Fiber.

Driftkostnader

Hushållsel
38 477 kr
Vatten/avlopp
3 538 kr
Väg/samfällighetsavgift
7 000 kr
Renhållning
2 208 kr
Underhåll
2 200 kr
Antal personer i hushållet
2 st
Summa
53 423 kr
(fastighetsavgift/skatt på 10 425 kr tillkommer)
Elförbrukning
16 260 kWh/år

Underhållskostnaden är en reparationsfond till samfälligheten.

Besiktning

Förbesiktigad
Ja

Energideklaration

Status
Utförd (2025-11-18)
Primärtenergital
146 kWh/m2/år
Energiklass
E

Ekonomi

Taxeringsvärde
2 960 000 kr (fastställt avseende år 2024)
Värdeår
1968
Byggnadsvärde
1 751 000 kr
Markvärde
1 209 000 kr
Skatt/avgift
10 425 kr
Typkod
220, Småhusenhet, bebyggd

Pantbrev

Totalt 12 st pantbrev om 1 966 000 kr.

Servitut / Planbestämmelser

Rättigheter / gemensamhetsanläggningar
Gemensamhetsanläggning: Salem blåklockan ga:1 ändamål: Vägar, Vattenförsörjning, Avloppsanläggning, Radio- TV och/eller tele, Elledning och/eller belysning, Grönområden
Avtalsservitut Tillträde mm(2 st)
Förmån: Avtalsservitut Tillträde mm, 01-IM7-2001/310.1
Förmån: Avtalsservitut Tillträde mm, 01-IM7-2001/312.1
Last: Avtalsservitut Tillträde mm, 01-IM7-2001/309.1
Last: Avtalsservitut Tillträde mm, 01-IM7-2001/311.1
Planbestämmelser
Ändring av detaljplan (2006-10-17) Stadsplan (1985-06-03)
Vardagsrum Linnéastigen 8
Vardagsrum
Kök och matplats Linnéastigen 8
Kök och matplats
Kök Linnéastigen 8
Kök
Kök Linnéastigen 8
Kök
Matplats Linnéastigen 8
Matplats
Kök Linnéastigen 8
Kök
Kök Linnéastigen 8
Kök
Matplats Linnéastigen 8
Matplats
Matplats Linnéastigen 8
Matplats
Matplats Linnéastigen 8
Matplats
Matplats Linnéastigen 8
Matplats
Kök Linnéastigen 8
Kök
Kök Linnéastigen 8
Kök
Kök Linnéastigen 8
Kök
Kök Linnéastigen 8
Kök
Övre hall / trapphus Linnéastigen 8
Övre hall / trapphus
Vardagsrum Linnéastigen 8
Vardagsrum
Vardagsrum Linnéastigen 8
Vardagsrum
Vardagsrum Linnéastigen 8
Vardagsrum
Balkong Linnéastigen 8
Balkong
Balkong Linnéastigen 8
Balkong
Vardagsrum Linnéastigen 8
Vardagsrum
Vardagsrum Linnéastigen 8
Vardagsrum
Övre hall Linnéastigen 8
Övre hall
Sovrum 3 Linnéastigen 8
Sovrum 3
Badrum Linnéastigen 8
Badrum
Trapphus Linnéastigen 8
Trapphus
Inre hall Linnéastigen 8
Inre hall
Hall Linnéastigen 8
Hall
Badrum Linnéastigen 8
Badrum
Badrum Linnéastigen 8
Badrum
Sovrum 1 Linnéastigen 8
Sovrum 1
Sovrum 2 Linnéastigen 8
Sovrum 2
Framsida Linnéastigen 8
Framsida
Exteriör Linnéastigen 8
Exteriör
Exteriör Linnéastigen 8
Exteriör
Exteriör Linnéastigen 8
Exteriör
Baksida Linnéastigen 8
Baksida
Exteriör Linnéastigen 8
Exteriör
Exteriör Linnéastigen 8
Exteriör
Exteriör Linnéastigen 8
Exteriör
Exteriör Linnéastigen 8
Exteriör
Exteriör Linnéastigen 8
Exteriör
Exteriör Linnéastigen 8
Exteriör
Exteriör Linnéastigen 8
Exteriör
Exteriör Linnéastigen 8
Exteriör
Exteriör Linnéastigen 8
Exteriör
Exteriör Linnéastigen 8
Exteriör
Exteriör Linnéastigen 8
Exteriör
Fastighetskarta Linnéastigen 8
Fastighetskarta
Planritning
Planritning