Meny
Hem till Salu Nyproduktion Om oss Byta Bostad Medarbetare Kontakt
Logotyp
Dånviksvägen 30

Rönninge / Dånviksvägen 30

Stor ombyggd sekelskiftesvilla i exklusiv och modern stil med sagolik strandtomt

Nu har vi äran att presentera detta vackra och exklusiva drömboende som skriver sin historia från 1909, med 6 rum och fantastiska sällskapsytor. "Villa Valla", som huset så fint kallas, byggdes sannolikt före 1906 och som nyligen byggts om till en toppmodern modern villa om ca 228 kvm. Läget är helt brilliant med egen strandlinje, brygga och sjöbod. Här bor du centralt i Rönninge men ändå lugnt och avskilt med fin trädgård och stor plan gräsmatta som sträcker sig hela vägen fram till vattnet. Ett älskat hus skall nu möta nya livsnjutare, vilka skall fröjdas i den väl insynsskyddade trädgården som sträcker ut sig i solen. Det K-märkta huset byggdes om och totalrenoverades 2020-2021 är idag en arkitektritad och exklusiv villa med stora sociala ytor, fantastiska fönsterpartier som släpper in ljus samtidigt som de erbjuder magiskt utsikt över sjön Flaten. Här finns fyra rymliga sovrum, två exklusiva och helkaklade badrum samt separat tvättstuga. Energisnål bergvärmepump samt luftluftvärmepump värmer upp huset och ger låg driftkostnad. Runt huset sträcker sig en stor altan som övergår till en helt fantastisk terrass som erbjuder sjöutsikt och vackra solnedgångar som glittrar i vattnet. Från övre plan kommer du ut till en stor takterras med söderläge och sjöutsikt. Villan ligger i idylliska Rönninge vid sjön Flaten, så på vintern kan du snöra på dig långfärdsskridskorna eller skidorna för en tur på den plogade sjön. En kort promenad tar dig till Rönninge centrum som erbjuder närservice och goda kommunikationsmöjligheter. Här finns matbutik, kaffestuga, bra restauranger, delikatessbutik mm. För större utbud kan du ta pendeltåget till Stockholm City, vilket tar ca 30 min. Fiskerätt i sjön Uttran och sjön Flaten.

BESKRIVNING;
Varmt välkommen till detta fantastiska villa med strandtomt i centrala Rönninge. Villan är ombyggd/totalrenoverad 2020-2021. Bostaden disponeras enligt följande:

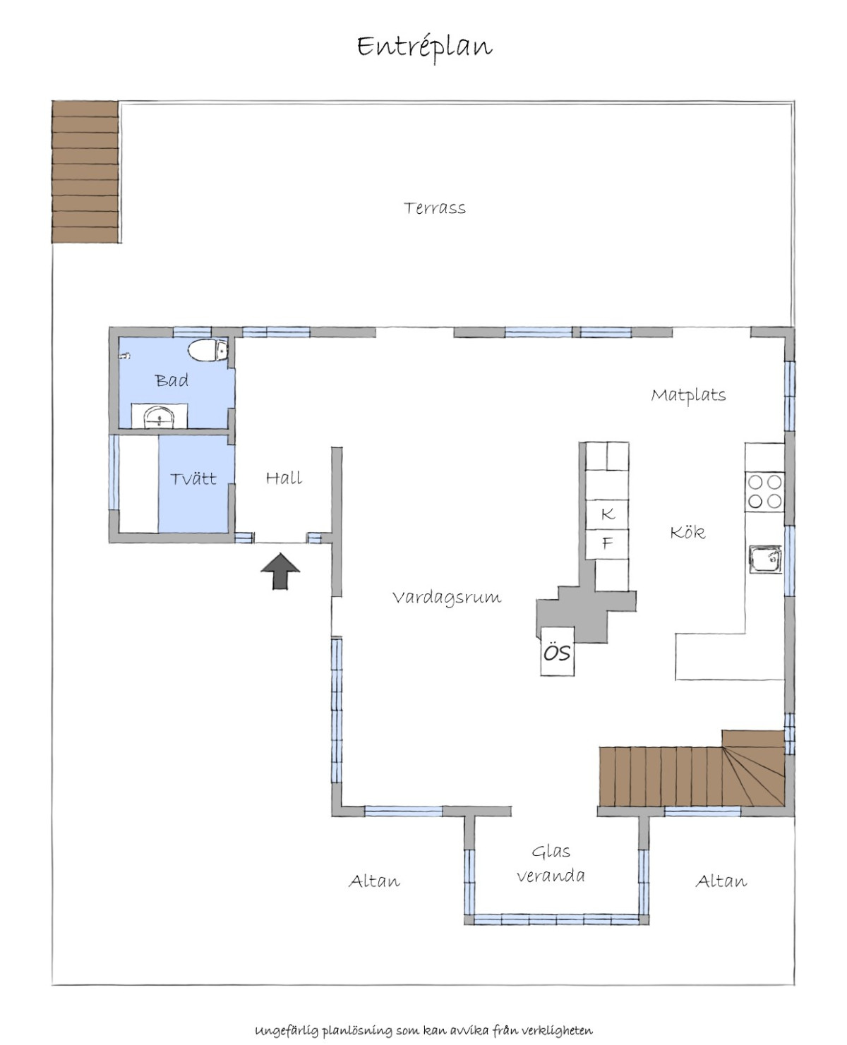
ENTRÉPLAN
HALL
Välkomnande hall med storslagen sjöutsikt och stora klinkerplattor på golv som längre in i hallen övergår till vacker fiskbensparkett. Väggarna är vitmålade. På detta våningsplan ligger genomgående vattenburen golvvärme.

TVÄTTSTUGA
Modern och praktisk tvättstuga, här finns tvättmaskin och torktumlare samt praktisk arbetsbänk.

BADRUM
Vackert helkaklat badrum i exklusivt utförande och vackra mässingsdetaljer. Här finns dusch, wc och handfat med kommod.

VARDAGSRUM MED GLASVERANDA
Mycket stort vardagsrum med fiskbensparkett och vitmålade väggar. Vardagsrummet har ett centralt läge i huset och knyter ihop terrass, matplats och kök på ett harmoniskt och genomtänkt vis. Den magnifika sjöutsikten är slående vilken kan njutas av genom de stora fönsterpartierna. Den stora terrassen i sydväst rymmer både longemöbler, solstolar och matbord. I andra ändan av vardagsrummet finns den platsbyggda och smidda trappan samt den mysiga glasverandan.

KÖK
Stort modernt kök med påkostade detaljer och arbetsbänk i marmor. Här finns gott om plats för förvaring samt trevligt umgänge i bardelen. Köket och matplatsen skapar harmoni för den matlagningsintresserade. Köket är utrustat med kyl, frys, induktionshäll, spisfläkt, inbyggd ugn, kombinerad mikro/ugn samt diskmaskin.

ÖVRE PLAN
GLASVERANDA
Trevlig glasveranda som kan bli familjens läshörna eller hemmakontor.

SOVRUM 1
Fint sovrum i vinkel med laminatgolv och vitmålade väggar.

BADRUM
Stort och exklusivt badrum med stora klinkerplattor, golvvärme och vackra mässingsdetaljer. Här finns badkar, dusch och dubbla handfat.

SOVRUM 2 & TAKTERRASS
Stort sovrum med stora fönsterpartier mot sjön, här kan du njuta av fantastisk utsikt. På golvet ligger laminat och väggarna är vitmålade. Från detta rum kommer du ut till den stora takterrassen med glasräcke.

SOVRUM 3 / MASTER BEDROOM MED WALK IN CLOSET
Harmoniskt och balanserat master bedroom med husets vackraste utsikt mot sjön Flaten genom stora fönsterpartier. I anslutning till rummet finns en mycket trevlig walk in closet för den som värdesätter ordning och reda.

SOVRUM 4
Fint sovrum i vinkel med laminatgolv och vitmålade väggar.

SOUTTERRÄNGVÅNING
Fristående våningsplan med stora och öppningsbara glaspartier som vetter mot sjön. Våningen kan användas till verksamhet eller härligt social yta för familjen. Här finns ett stort allrum med ljust laminatgolv och vitmålade väggar samt två mindre rum vilka idag är inredda för verksamhet. Här finns även ingången till pannrum med modern bergvärmepump.

Kort fakta

Boarea
228 kvm
Antal rum
6 rum
Tomtarea
1 193 kvm
Pris
16 750 000 kr

Visning

Kontakta mäklaren för visning.

Ansvarig mäklare

Patrik Alwin
Fastighetsmäklare
070-9154888 patrik@pianfa.com

Intresseanmälan

Kort fakta

Typ
Friliggande villa
Upplåtelseform
Friköpt
Adress
Dånviksvägen 30
Område
Rönninge
Kommun
Salem
Boarea
228 kvm
Antal rum
6 rum & kök, varav 4–5 sovrum
Tomtarea
1 193 kvm
Pris
16 750 000 kr utgångspris

Byggnad

Byggnadstyp
2 plansvilla med soutterrängvåning
Byggnadsår
1909 (Sannolikt byggt före 1906, ombyggt 2020)
Fasad
Trä
Stomme
Trä
Fönster
3-glas
Bjälklag
Trä
Tak
Tegel
Grund
Betongplatta och delvis krypgrund
Uppvärmning
Bergvärme och luft/luftvärmepump
Vatten/avlopp
Kommunalt vatten året om. Kommunalt avlopp
Ventilation
Självdragsventilation (förstärkt med mekanisk forcering i våtrum, typ Paxfläktar).
Övriga byggnader
Förråd/redskapsbod
Övrigt
Stor träbelagd altan runt huset som övergår till stor terrass.
Stor balkong/terrass.

- Ombyggd/totalrenoverad 2020-2021
- Sjöutsikt och strandtomt
- Braskamin
- Modern planlösning
- Två helkaklade badrum
- Separat tvättstuga
- Fristående soutterrängvåning
- Bergvärme
- Stora terrasser med sydvästläge
- Fiber
- Brygga
- Stenlagd yta med flera parkeringsplatser

Tomten

1 193 kvm. Strandtomt.

TV- och internetanslutning

Bredband: Fiber.

Driftkostnader

Hushållsel
28 980 kr
Vatten/avlopp
6 672 kr
Renhållning
3 272 kr
Antal personer i hushållet
5 st
Summa
38 924 kr
(fastighetsavgift/skatt på 10 425 kr tillkommer)

Energideklaration

Status
Utförd (2025-10-20)
Primärtenergital
72 kWh/m2/år
Energiklass
C

Ekonomi

Taxeringsvärde
5 705 000 kr (fastställt avseende år 2024)
Värdeår
1929
Byggnadsvärde
2 299 000 kr
Markvärde
3 406 000 kr
Skatt/avgift
10 425 kr
Typkod
220, Småhusenhet, bebyggd

Pantbrev

Totalt 3 st pantbrev om 3 300 000 kr.
Exteriör Dånviksvägen 30
Exteriör
Exteriör Dånviksvägen 30
Exteriör
Exteriör Dånviksvägen 30
Exteriör
Kök Dånviksvägen 30
Kök
Matplats Dånviksvägen 30
Matplats
Vardagsrum Dånviksvägen 30
Vardagsrum
Vardagsrum Dånviksvägen 30
Vardagsrum
Uteplats Dånviksvägen 30
Uteplats
Kök Dånviksvägen 30
Kök
Kök Dånviksvägen 30
Kök
Kök Dånviksvägen 30
Kök
Kök Dånviksvägen 30
Kök
Kök Dånviksvägen 30
Kök
Kök Dånviksvägen 30
Kök
Kök Dånviksvägen 30
Kök
Matplats Dånviksvägen 30
Matplats
Uteplats Dånviksvägen 30
Uteplats
Kök Dånviksvägen 30
Kök
Trappa Dånviksvägen 30
Trappa
Matplats Dånviksvägen 30
Matplats
Vardagsrum Dånviksvägen 30
Vardagsrum
Vardagsrum Dånviksvägen 30
Vardagsrum
Eldstad Dånviksvägen 30
Eldstad
Vardagsrum Dånviksvägen 30
Vardagsrum
Vardagsrum Dånviksvägen 30
Vardagsrum
Vardagsrum Dånviksvägen 30
Vardagsrum
Vardagsrum Dånviksvägen 30
Vardagsrum
Badrum Dånviksvägen 30
Badrum
Hall Dånviksvägen 30
Hall
Inre hall Dånviksvägen 30
Inre hall
Glasveranda Dånviksvägen 30
Glasveranda
Badrum Dånviksvägen 30
Badrum
Badrum Dånviksvägen 30
Badrum
Badrum Dånviksvägen 30
Badrum
Sovrum 3 / Master Dånviksvägen 30
Sovrum 3 / Master
Sovrum 3 / Master Dånviksvägen 30
Sovrum 3 / Master
Walk in closet Dånviksvägen 30
Walk in closet
Sovrum 2 Dånviksvägen 30
Sovrum 2
Sovrum 2 Dånviksvägen 30
Sovrum 2
Balkong / Terrass Dånviksvägen 30
Balkong / Terrass
Sovrum 1 Dånviksvägen 30
Sovrum 1
Sovrum 1 Dånviksvägen 30
Sovrum 1
Sovrum 4 Dånviksvägen 30
Sovrum 4
Sovrum 4 Dånviksvägen 30
Sovrum 4
Allrum Dånviksvägen 30
Allrum
Allrum Dånviksvägen 30
Allrum
Allrum Dånviksvägen 30
Allrum
Allrum Dånviksvägen 30
Allrum
Allrum Dånviksvägen 30
Allrum
Rum Dånviksvägen 30
Rum
Rum Dånviksvägen 30
Rum
Uteplats Dånviksvägen 30
Uteplats
Exteriör Dånviksvägen 30
Exteriör
Utsikt Dånviksvägen 30
Utsikt
Uteplats Dånviksvägen 30
Uteplats
Utsikt Dånviksvägen 30
Utsikt
Uteplats Dånviksvägen 30
Uteplats
Uteplats Dånviksvägen 30
Uteplats
Exteriör Dånviksvägen 30
Exteriör
Exteriör Dånviksvägen 30
Exteriör
Trädgård Dånviksvägen 30
Trädgård
Exteriör Dånviksvägen 30
Exteriör
Exteriör Dånviksvägen 30
Exteriör
Exteriör Dånviksvägen 30
Exteriör
Exteriör Dånviksvägen 30
Exteriör
Fastighetskarta Dånviksvägen 30
Fastighetskarta
Planritning
Planritning
Planritning